High Speed Train Station – Prototyp für Shanghai
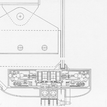
Detail Fassade/BahnsteigSchiebeGlasTüre 1:10